En la Sala d'Exposicions de l'Ajuntament han estat exposats els 35 projectes que s'han presentat al concurs d'idees per al Nou Mercat. Com a que només ha hagut un guanyador i existeixen possibilitats de que els autors no vullguen fer públic els detalls del seu treball, he optat per només publicar la informació (que ja es pública des del moment que està exposada) sobre el projecte que finalment es convertirà en realitat. Si algú vol vore la resta de projectes, te fins dijous per a acudir a la Sala d'Exposicions.
Fes clic en les imatges per a vore en gran.
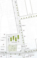
Detalls del projecte guanyador del Nou Mercat
El Pla General d'Ordenació Urbana
Avise: aquest article és més llarg del que acostume a escriure. El tema ho mereix.
Fa un parell de dies ens despertavem en la noticia de que l'equip de govern anava a provar el PGOU després de fer unes quantes modificacions. Entenc que per a resoldre algún problema de normativa i a l'hora per a deixar el seu segell en un treball que el PSOE no va aprovar (desconec les raons).
El PGOU
S'ha de dir que el Pla General d'Ordenació Urbana (PGOU) és un document importantíssim en el sentit que defineix clarament el futur creixement de la nostra ciutat. Indica quines àrees es dedicaràn a servicis municipals (esports, educació, ...) i quines a construcció de indústria i vivendes amb especificació de la seua altura i avançant-se les necessitats futures. Alhora, es tracta d'un document tremendament golós per a les constructores, acostumades a fer pressió per tal d'imposar els seus interessos que no cal dir ací.És important perquè defineix quin Algemesí anem a tindre els pròxims anys i permet definir com volem que el poble creixa. Entenc que algo tan important deuria estar totalment fora de la política i deuria existir, per respecte als algemesinencs, un consens quant a qué volem i com aconseguir-ho. No fer-ho així ens pot fer caure en el absurde de que el primer que faça un nou equip de govern siga desfer o modificar el que ha fet l'anterior, i crec que és prou evident que en eixa dinàmica anem a perdre tots.
Per desgràcia, els últims pasos fan pensar que hem caigut en la dinàmica del pati de xiquets i la planificació urbana també ha entrat de ple en els rifi-rafes típics dels nostres polítics. A banda, la falta de respecte als ciutadans que suposa convocar d'urgència un plenari a les 8 del matí per a aprovar les modificacions al document diuen moltíssim de les ganes d'amagar coses als ciutadans. Per eixe camí anem molt, molt mal.
El model actual
Com ja he dit en altres ocasions, Algemesí no destaca precisament per tindre amples avingudes que el travessen ni grans extensions de jardins. El model que s'ha seguit els últims anys ha sigut el de rodejar el centre urbà d'un cinturó "verd" d'avingudes. Jo no utilitzaria la paraula parc perquè em sembla ridícula la extensió i amplaria del Salvador Castell i Bernat Guinovart, de fet en València Blasco Ibañez és més ampla i no li diuen Parc. Potser podriem dir que Alzira amb el seu Parc de l'Alquenència sí pot dir que en te un. Per a fer-se una idea, al PGOU, la enorme plaça del Pla on s'estan construint al mig un edifici de tres altures i dos moles de VPO estàn considerades com a zones verdes. Per cert, dos pedres per al graciós que ho va dissenyar així trencant la continuitat de les zones ajardinades.Perfecte. No en tenim avingudes i no en tenim parcs. Vegent el PGOU tindrem un parc en Bernat Guinovart pero la vertebració en avingudes ben amples (Guinovart) termina en el Pla. Potser els que han dissenyat el PGOU no tenen ambicions o no estàn pensant en el 2050 o en el 2100. Les ciutats no tenen data de caducitat i totes tenen tendència a crèixer (d'ahí ve el nom d'aquest blog). No veig ni en el PGOU provisional ni en el que s'acaba de proposar eixa ambició. Però no deixa de ser la meua opinió.
Supose que aquesta article arriba tard. Redactar un document d'eixa complexitat porta temps i diners. Temps perquè tots som conscients dels anys que fan falta per a fer que carrers com Sant Benet o Nou del Convent siguen més amples. I diners, perquè es nota en el fet que el PP haja fet els canvis mínims per a deixar la seua empremta. Més altures i més àrees per a edificar. Supose que els constructors hauràn eixits contents en eixe aspecte. Tindre un Alcalde que també és Regidor d'Urbanisme feia preveure exactament açò i més. Cap sorpresa doncs.
Altres models
Entenc que els interessos de l'Ajuntament siguen també "embutir" la major quantitat de vivendes en el menor espai possible de forma que els recursos que l'Ajuntament tinga que gastar per servir als ciutadans es minitmitzen. Segons això, els edificis de vivendes deurien ser el més alts possible i els carrers deurien ser estrets i llargs. Però, volem aixó? A mi personalmente és just el contrari del que desitjaria per a la meua Ciutat. Tendim a còpiar tot el que ve d'Estats Units, però només lo roïn, la distribució de les ciutats amb un nucli dens envoltada per kilómetres i kilómetres quadrats de cases unifamiliars amb el seu jardinet i en un entorn tranquil i ple de vegetació no cala en aquest país.Algemesí está delimitada al sudoest pel riu Magre, al est per la autopista i al nord per la futura CV-50. La via ni la mencione perquè la tenim integrada dins del nucli urbà per a mal, però sobre tot per a bé donat l'ús que fem d'eixe medi de transport. I de soterrar-la millor ens oblidem perquè ara tindriem tres problemes, un en cada pas inferior, i la complexitat de fer-ho no està justificada per als 27000 habitants que tenim.
Quin seria doncs un model més òptim per a crèixer? El cinturó de bulevards caldria acabar-lo, el que implica continuar en la rotonda del final del Pla i envoltar la ciutat passant a l'altre costat de les vies i seguint la via fins el pont de Guadassuar. Un trajecte on només hi han indústries. Després enllaçar amb la eixida cap a Alzira i per últim en el futur pont dels Maristes que tancaria el cinturó. El pas a desnivell de l'Estació haguera segut vital, al menys en un únic carril per a vehicles i, per desgràcia, ja no el podrem gaudir.
Amb un model de creixement basat en augmentar la altura dels edificis actuals, arribarà un dia que les avingudes que envolten la ciutat no tindran prou capacitat per al tràfic que te que suportar. I els embossos seran constants. No tractar eixe problema abans que arribe és una irresponsabilitat immensa. No parle de posar doble carril en eixe cinturó, però potser sí es deuria tindre en compte eixa possibilitat que algun dia serà necessària.
Crisi
Durant uns mesos hem construit més que tota Europa junta. Per a nosaltres, les époques de bonança impliquen construcció de vivendes perquè la construcció és el niu ideal de comissions i està lligada a la paraula "pelotazo" de forma més que evident. Ara estem pagant les ambicions de milers de neo-rics amb una frenada que estem sentint tots, i en especial la mateixa construcció i els Ajuntaments. Però el més trist és que d'ací 15 anys viurem un nou episodi d'aquesta estúpida historia idèntica al que s'està acabant ara. Supose que, simplement, som així.Petició
Quan es va convocar el concurs del mercat, no va a haber un concurs d'idees previs, ni cap fase on els ciutadans pugueren opinar. Aquest blog va nàixer en un article on publicava un conjunt d'idees que, per circunstàncies i sort, algunes d'elles sí van a fer-se realitat. Entenc doncs que els ciutadans sí podem fer propostes interesants. En aquell moment les preses venien justificades per l'Ajuntament està pagant el lloguer d'un local al Teular i perquè hi han amenaces de que una sentència judicial detinga tot el procés.
Res de tot aixó passa en el PGOU. També sembla que hi ha presa, però els ciutadans no només hem quedat fora del procés (aquesta vegada no hi han excuses), damunt les modificacions s'aproven en un plenari extraordinari, sense avís previ, i fet a les 8 del matí.
Encara que aquest fet és una autèntica bofetada als ciutadans, i la actitut dels nostres dirigents està allunyant-se de la que Algemesí necessita, espere sincerament que les coses canvien. El risc de fer les coses així és que en el instant en que el PP se'n vaja, el partit governant desfaça tot el que els actuals han fet. I així constantment. Sense cap dubte, eixa és la millor forma de tindre un terme fragmentat, ple de parxes, apanyos i sense una clara definició d'on es vol arribar. Una herència molt hermosa per als nostres fills.
Demane als senyor polítics una cosa que mai deuriem demanar: que ens tinguen en compte als ciutadans. No val enrecordar-se d'ells a l'hora de votar. No val passar d'ells per a la resta de coses.
Referències
Tramvia elèctric polivalent
Una de les propostes per a millorar el transport que feia el PP al seu programa electoral era la següent:
09.Promourem la creació d'un tramvia elèctric polivalent, capaç de circular per vies reservades i per carreteres convencionals, que enllace les principals ciutats de la nostra Comarca i que complemente el sistema ferroviari. Este sistema està estenent-se a Europa pel seu baix cost, respecte amb el medi ambient i rendibilitat. Així mateix, la Generalitat ha promogut set d'estos tramvies (el més pròxim és el que unirà, per la costa, Cullera amb València).
Respecte al possible traçat, en aquesta pàgina algú (certament optimista) proposa una extensió de la xarxa de ferrocarrils on podem trobar dos línies noves prop d'Algemesí.
- Una eixiria de Vilella (Alzira) i passaria per Alzira, Algemesí, Albalat, Polinyà, Riola, Sueca i arribaria fins Cullera.
- L'altra eixiria de l'Alcudia i passant per Guadassuar, Alzira, Vilella, Carcaixent Nord, la Barraca, Aigües Vives, Benifairó, Tabernes, Xeraco, Gandía, Bellreguard, Oliva i arribaria a Pego.
Referències:
- 20minutos.es : El Consell proyecta hacer un tranvía de Valencia a Cullera que pase por Pinedo.
- Tranvia.org
- Fòrums de SkyScraperCity.com. Molt recomanables, per cert, per a conèixer tota classe de projectes futurs. Per exemple els edificis projectats per a la zona del Tulell a Alzira.
El problema de la Rotonda del Pirulo Espinat i els canvis pel Mercat
Abans feia més ús de la carretera coneguda com la del pont de McDonalds (molt graciós el que va triar el color groc). Ja sé que parlem d'Alzira i no d'Algemesí, però a molts algemesinencs els afecta també el resultat de no fer les coses en un mínim de previsió.
Com sabreu, la rotonda que uneix la CV-53, la entrada nord d'Alzira, la nova zona del Tulell i la carretera d'Albalat passen totes per un mateix punt: la rotonda del pirulo espinat (ja m'enteneu). Fa uns mesos anunciaren que anaven a reformar la zona per adaptar-la a la nova zona del Tulell i a les urbanitzacions que estan fent allí. Com sabia que habien renunciat a fer un pas elevat, que per un altra banda haguera sigut lo més prudent, immediatament vaig pensar que farien ús del sentit comú i arreglarien fàcilment el problema. Però per alguna raó, la lógica i la política (i també la justicia) no van pel mateix camí i a dia de hui continuen formant-se coles innecesaries per a entrar a Alzira o per accedir al Carrefour o al polígon de la carretera d'Albalat per a la gent que ve des de València. Coles que em pareixen indignants en quant sent una ambulància tinguent que fer maniobres per a dur al malalt a l'hospital.
Per qué?
La solució que adoptaren va ser ampliar la rotonda. Potser siga la primera solució que li vinga al cap a qualsevol que no vullga dedicar-li més de un minut al problema. Però una rotonda és un element del tràfic que te unes característiques que cal conèixer. Qui haja tingut la ocasió d'experimentar com quatre vehicles arriben a una rotonda al mateix temps per quatre punts i eixen d'ella sense parar s'adonarà de la seua utilitat. Però eixa utilitat desapareix en quant passa un umbral de tràfic i arriben més vehicles dels que la rotonda pot absorbir.
En eixe cas, la solució no és fer la rotonda més gran. Podrien haber multiplicat per quatre el tamany i a dia de hui estariem exactament igual: en els responsables polítics (i en teoria experts) rascant-se el cap i preguntant-se que ha fallat. La solució passa per reduir el tràfic que arriba a la rotonda.
La forma més evident és habilitar carrils que desvien el tràfic que va a agafar la primera eixida de la rotonda (la que li queda a la dreta al entrar) de forma que no arriben a entrar en ella. En aquest cas (pirulo espinat), la gent que eix de Carrefour i que es dirigeix cap a València per la CV-43 no tindria que tocar la rotonda (aquesta connexió seria la més necessària i encara estan a temps). Lo mateix podria dir-se de la gent que eix d'Alzira i vol anar cap al Carrefour, la que ve des del Tulell i vol anar cap a la gasolinera de l'entrada d'Alzira i la que ve de València i vol anar cara al Tulell (aquesta última ja és impossible degut al espai esportiu que estan a punt d'inaugurar).
En qualsevol cas, el principal problema és la falta de civisme de la gent que si fera un bon ús de l'intermitent tant per a mantindre's com per a abandonar la rotonda permetria que els que estan esperant i venen del pont saberen quan poden eixir. Un altra solució seria separar el màxim posible els dos punts de connexió amb la CV-43, de forma que encara que no facen ús dels intermitents (les persones no aprenem) done temps a vore quins cotxes eixen de la rotonda i done temps a incorporar-se en garanties. Tot prou evident però sembla que no per a qui deuria ser-ho.
En fi, esperarem que el desdoblament de la carretera d'Albalat per vora el riu Xúquer i el futur pont que enllace en la rotonda de la ITV servixquen per a alleugerir el tràfic ja que els responsables de fer-ho no han sigut capaços. Aixó o que l'increment del tràfic amb el desenvolupament de la zona obligue a crear el necessari pas a desnivell.
Més gran
Nota: Vaig a còrrer el risc de ser massa pedant en el tema, però crec és important obrir un debat davant dels futurs canvis en la zona del Mercat d'Algemesí. Tant les declaracions del senyor Alcalde a Las Provincias (peatonalización del tramo de la calle Arbres hasta la calle Germanies) com en l'article principal (El proyecto implicará un reestudio de la circulación de esta zona céntrica de la localidad, para darle prioridad al peatón con zonas sin circulación en la calle Arbres) es deixa caure que hi haurà una important reestructuració del tràfic. M'atrevisc a fer un avanç pel meu compte del que suposarà eixa reestructuració: canvi de sentit dels carrers Muntanya, Nou del Convent i Parra des de Sant Josep de Calassanç fins la Ronda d'Alzira com es pot vore al següent plànol. Entre altres coses, desfarà els embossaments actuals en Acadèmic Segura al desapareixer el stop. M'agradaria saber qué vos sembla?
Felicitació
Hui a Las Provincias publiquen més detalls del projecte guanyador. En particular els tres següents paràgrafs no em poden fer més feliç:
Una de las características principales será su construcción de forma paralela a la calle Lluís Vives-Acadèmic Segura, lo que ofrecerá una plaza abierta, al tiempo que se plantea un edifico permeable que fusionará la nueva construcción con la plaza peatonal.
Los arquitectos premiados se mostraron agradecidos durante la presentación del proyecto “que surge tras las visitas que hemos realizado a Algemesí y de nuestras continuas conversaciones con la gente de la ciudad para consultar sus opiniones e ideas acerca del futuro mercado”, afirma José María Medrano.
El proyecto implicará un reestudio de la circulación de esta zona céntrica de la localidad, para darle prioridad al peatón con zonas sin circulación en la calle Arbres, y además dar cabida a un aparcamiento de dos plantas que albergará entre 260 y 280 coches.
Jo soc una d'eixes persones que vaig parlar en ells i els vaig donar l'adreça d'aquest blog per a que agafaren el que vullgueren ja que jo vaig decidir no presentar-me donat la quantitat de requeriments tècnics necessaris. Però el que realmente m'agrada és la descripció que al primer paràgraf és fa de la meua idea d'edifici pantalla per a aïllar el tràfic de la plaça peatonal. També parlen de la redistribució del tràfic al tercer paràgraf, per lo que supose que contemplaràn la possibilitat d'invertir el sentit dels carrers Muntanya, Nou del Convent i Parra des de la Ronda d'Alzira fins el carrer Josep de Calassanç, resolent de pas l'embossament que es sol fer en el stop dels quatre cantons.
No sé si han fet ús del que vaig publicar jo ací, però sembla evident que tot fa pensar que així és. I els ho agraix molt. Sobre l'edifici només dir que em sembla perfecte donat que respecta la orientació, altura i funcionalitat que el projecte demanava i en el toc característic del despatx d'arquitectes del que he pogut vore uns quants treballs seus al S'estila de Punt2. En definitiva, no puc estar més content. Moltes gràcies!